Nouvel Hôpital Limmattal
Suisse, Zurich
Santé
Livré
2018
Le nouvel hôpital « Limmattal » adopte une volumétrie simple, compacte et épannelée, pour mieux s’inscrire dans la topographie de l’environnement boisé du site et contribuer à la constitution du nouvel espace urbain de la ville de Schlieren.
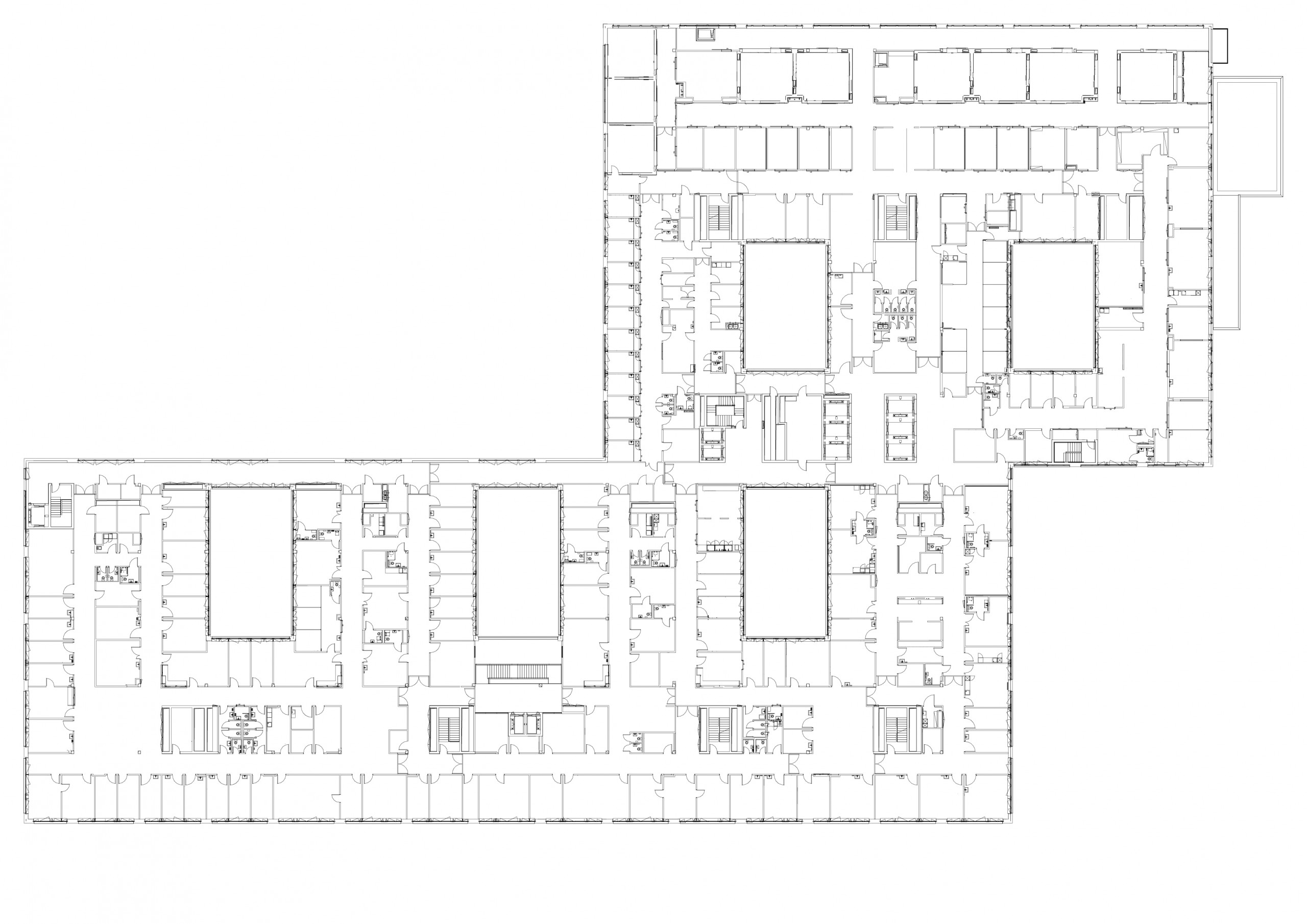
L’organisation interne du nouvel hôpital développe, autour de cinq cours intérieures, un système de structure modulaire régulier, garant de la flexibilité et de l’adaptabilité aux changements ultérieurs et extensions futures. En plus du programme hospitalier (180 chambres, un plateau technique avec service d’urgences, soins intensifs, blocs opératoires et imagerie), le bâtiment comporte également des lieux dédiés au public, ouverts sur la ville, comme les consultations et les espaces de convivialité (boutiques, restaurant, séminaires, auditorium). Les façades enduites présentent une modénature régulière et minimaliste rythmée par de grandes baies au travers desquelles les chambres s’ouvrent largement sur le paysage et la ville, en toute sérénité.
Urgences, soins intensifs, bloc opératoire, imagerie, hospitalisations conventionnelles, consultations, espaces de convivialité
Capacité : 200 lits et places, 8 salles d’opération
Spitalverband Limmattal
Conception construction
Entreprise Losinger Marazzi
Brunet Saunier & Associés
Bfb Architekten
Gerold Zimmerli
Emmer Pfenninger Partner Ag (BET façades), Bg Ingenieure und Berater Ag (BET structure), Hans Abicht Ag (BET CVC), Bösch Ag (BET Sanitaire), Eproplan Ag et Scherler Ag (BET electricité), Gartenmann Ag (BET physique du bâtiment), Mibag (BET facility Management), Gesswein Landschaftsarchitekten (paysagiste), Golem Images (perspectivistes), Archigraphie (vidéo)
Caspar Muschalek (chef de projet) et Mauve Esteoule-Sibilli, Jürgen Fallert, Kristina Ilieva, Magdalena Sroczynska, Frédéric Alligoridès (BIM-Manager)
48 500 m²
150 M CHF HT (valeur 2014)
Bruno HELBLING
BIM d’Argent, catégorie International