Institut Saint-Pierre
France, Palavas-Les-Flots
Santé
Livré
1999
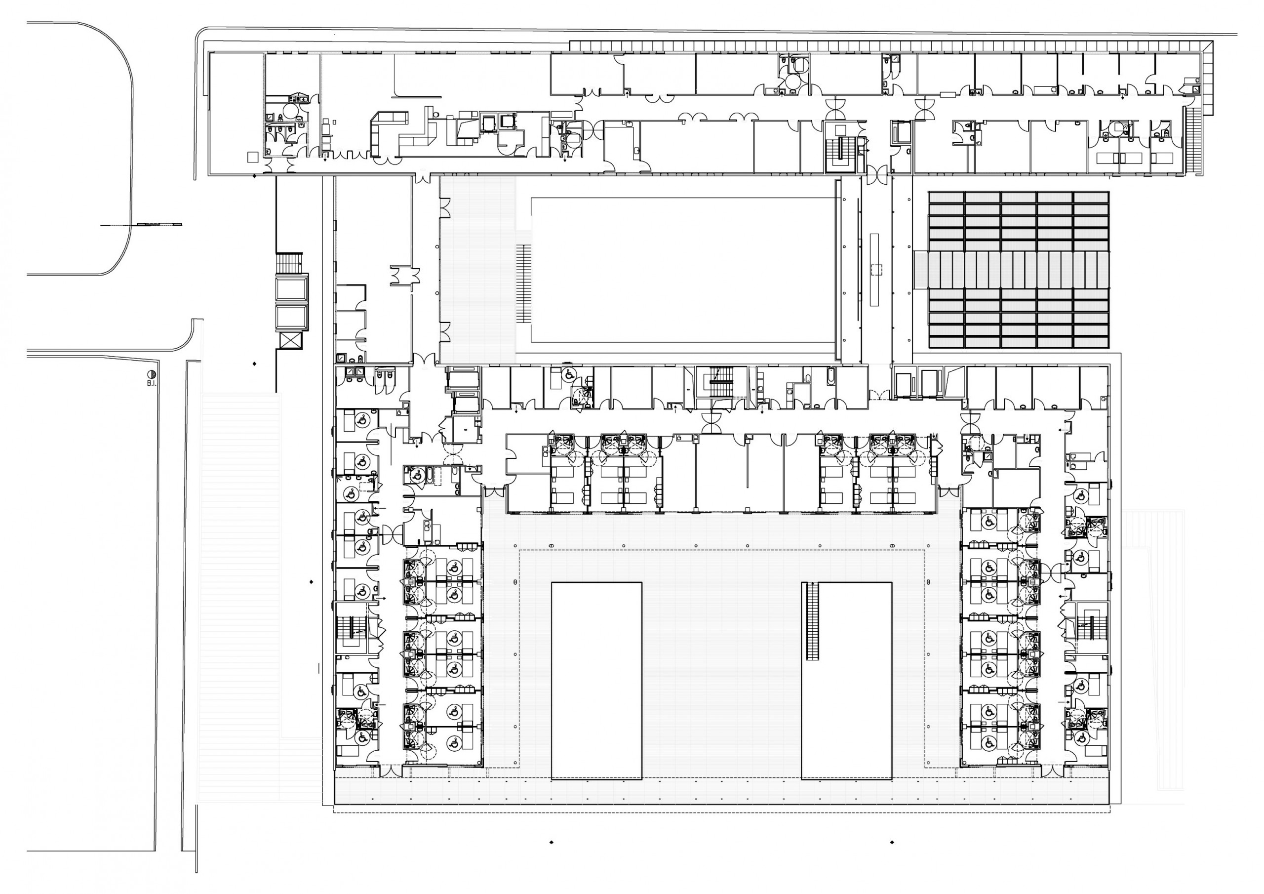
Entre mer et lagune, la ville de Palavas-les-Flots, sans équipement majeur, n’avait pour atouts que la mer et le soleil. La Méditerranée a donc guidé la conception du nouveau centre de rééducation fonctionnelle, basée sur l’héliothérapie, pour enfants et adolescents. Directement situé sur la plage, le projet s’inspire de l’architecture balnéaire et marine. Il substitue les critères de « villégiature » à l’angoisse de l’hospitalisation et se présente davantage comme un élégant navire de croisière, mariant les matières chaleureuses et les couleurs chatoyantes, les espaces de soins et de détente. Les façades en plans étagés, les terrasses en pont de bateau, suppriment la sensation d’isolement.
La transparence de l’accueil et des circulations, leur fluidité sont au service de la convivialité. On transite constamment entre extérieurs ensoleillés et intérieurs lumineux. Le bien-être des enfants et l’apaisement des parents sont au cœur des préoccupations. Les aménagements extérieurs tiennent en compte des difficultés des patients à se déplacer : une des terrasses devient un immense terrain de jeu, où brise-soleil et pergolas procurent de l’ombre. Les garde-corps, colorés comme un jeu de Mikado, rappellent le bastingage d’un paquebot. Les larges ouvertures des chambres permettent de tirer les lits sur les balcons d’où l’on aperçoit des rangées de palmiers qui adoucissent l’environnement. La mer est omniprésente, dont le bleu pénètre dans la quasi-totalité des pièces, les imprégnant de sa quiétude.
Réhabilitation et construction d’un bâtiment neuf comprenant 155 lits, plateau technique, hébergement, balnéothérapie, rééducation, audiophonologie, radiologie, piste de marche, cuisine, restauration, 10 salles de classe.
Œuvre Montpelliéraine des Enfants à la Mer (OMEM)
Loi MOP
Brunet Saunier & Associés
Jacobs (BET TCE et économiste de la construction), Péna & Peña (paysagiste), Sabine Rosant (Concepteur signalétique)
Jean-Michel Reynier (chef de projet concours et études), Christophe Kuntz (chef de projet chantier) et Jacques Lévy-Bencheton, Federico Masotto, Lionel Renouf
13 000 m²
15,2 M€ HT (valeur 1999)
Jean-Marie MONTHIERS