Institut de la Vision, Quinze-Vingt
France, Paris
Santé
Livré
2008
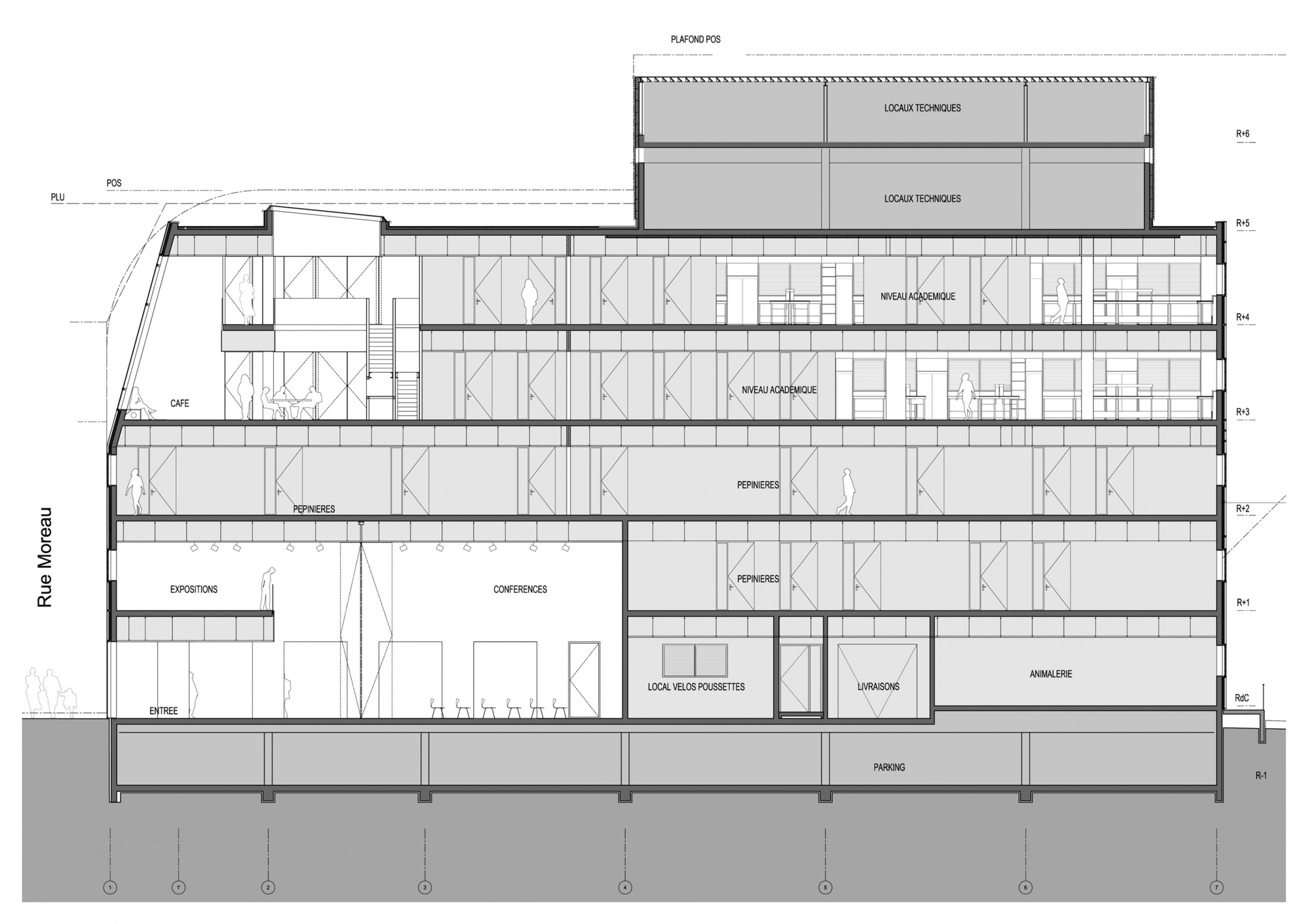
Dans ce quartier du faubourg Saint-Antoine qui a en partie conservé ses caractéristiques originales avec un parcellaire plutôt étroit, des gabarits raisonnables, des constructions modestes sur rue, des ateliers en fond de cours, la trilogie du programme (laboratoires, bureaux, résidence hôtelière) devenait une opportunité pour articuler l’imposant site hospitalier des Quinze-Vingts construit dans les années 1970 et le bâti hérité de l’hétérogénéité passée.
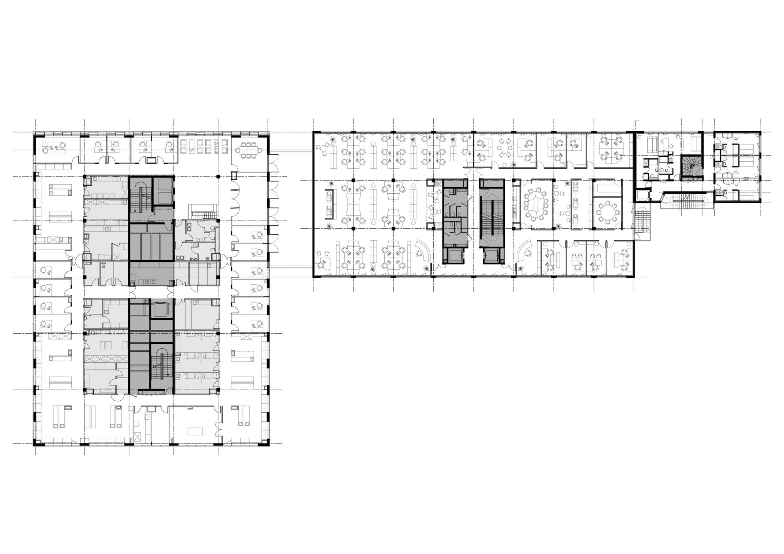
Ainsi le bâtiment tertiaire choisit la discrétion d’une trame d’atelier, la résidence hôtelière celle d’un simple immeuble de rapport, tandis que les laboratoires adoptent une image emblématique et évocatrice de l’activité de recherche qui y est développée. Une image que révèle un mur-rideau formé de plaques de verre blanc «imprimé», dont la perception visuelle et tactile change avec les reliefs qui s’y inscrivent et la lumière qu’elles renvoient. Ce vitrail monumental (qui puise son inspiration dans l’univers créatif des vitraux incolores comme ceux sortis des ateliers du maître verrier Louis Barillet) couvre la totalité de l’épure du bâti, dictée par le strict respect des alignements, hauteurs, héberges, et gabarits imposés par la réglementation.
Laboratoires, animalerie et pépinière d’entreprises, immeuble tertiaire, résidence-service de 26 chambres
Caisse des Dépôts et Consignations et Icade
Participation Public Privé (PPP)
Rabot-Dutilleul
Brunet Saunier & Associés
Icade Arcoba (économiste de la construction), Van Santen & Associés (BET façades), Icade Eurogem (mainteneur), Icade Eurostudiomes (gestionnaire résidence), Péna & Peña (paysagiste), Artefactory, Philippe Harden (perspectivistes), Alpha Volumes (maquettiste)
Stéphane Cachat et Christian Chopin (chefs de projet concours), Stéphane Cachat assisté de Cyril Pressacco, (chefs de projet études et chantier) et Frédéric Alligorides, Abdelhafid Bairi, Jacques Lévy-Bencheton, Franck Jaoui, Jérôme Levifve, Hoang Phuong Pham, Xiaojing Lu, Ana Markovic, Monika Mittermeyer, Laurent Noël, Maria-So De Noronha, Michel Roux-Dorlut, Nicolas Senly, Isabelle Vasseur
11 400 m²
24 M€ HT (valeur 2008)
Yves Marchand & Romain Meffre