HUG, Bâtiment Gustave Julliard
Suisse, Genève
Santé
Livré
2016
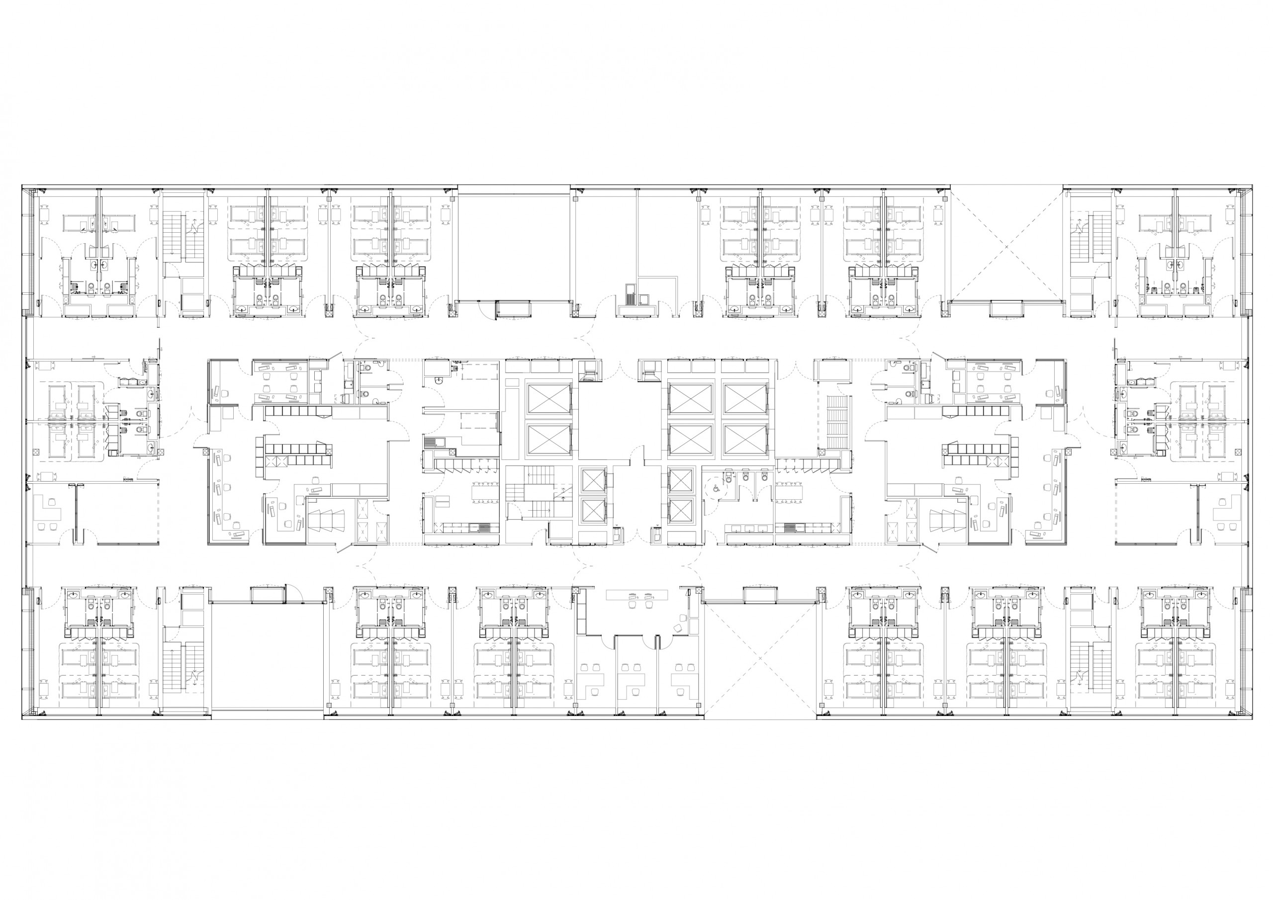
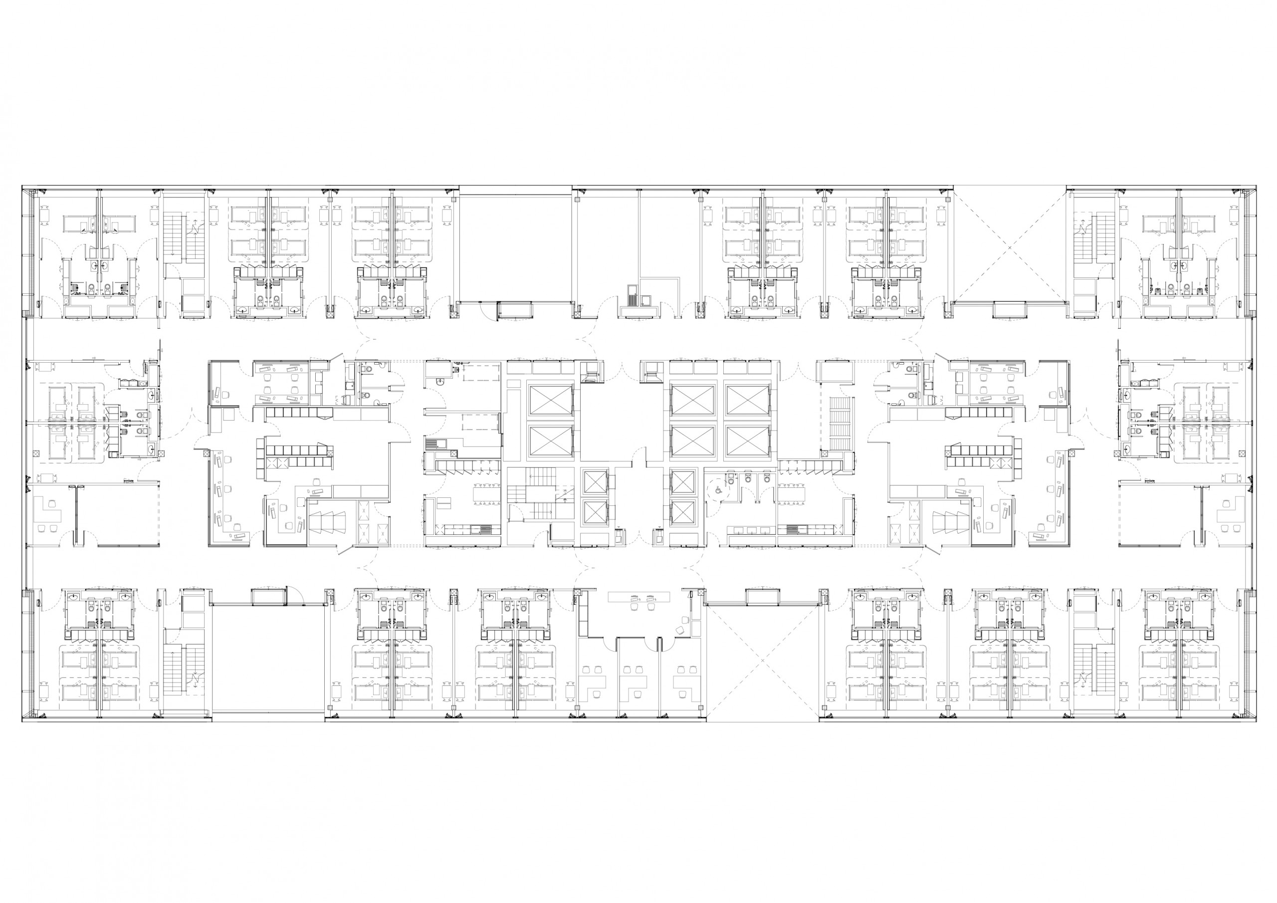
En extension des hôpitaux universitaires de Genève, au cœur de la ville, l’hôpital Gustave Julliard est un édifice compact de 45 mètres de haut, 35 mètres d’épaisseur et 70 mètres de long. Il se compose d’un socle de verre de quatre niveaux, dont le plus élevé sert de « sommier » aux sept étages supérieurs dévolus à l’hébergement. Au rez-de-chaussée, l’entrée principale et l’impressionnant atrium d’accueil donnent accès aux étages.
L’architecture du bâtiment exprime clairement les parties qui le constituent. Une construction ouverte, sobre et riche de détails qui accomplit derrière sa façade urbaine l’humanisation des espaces et l’optimisation du travail des collaborateurs. De grandes loggias embrassant deux étages, des grandes fenêtres aux allèges basses qui vont de mur à mur et partout, la lumière naturelle comme qualité capitale. Devant la façade, une vaste esplanade publique et une rue elle-même réaménagée en un véritable passage urbain traversant le site hospitalier.
Second bâtiment des lits, extension de l’hôpital et requalification de l’espace public. Bloc opératoire, hospitalisations, soins intensifs, surveillance continue.
Capacité : 472 lits et places, 6 salles d’opération
République et canton de Genève, Département des Finances (DF)
Brunet Saunier & Associés
Burckhardt+Partner, Odile Seyler et Jacques Lucan, Gerold Zimmerli
Burckhardt+Partner (économiste de la construction), Thomas Jundt ingenieurs civils (BET structure), Emmer Pfenninger (BET façades), Tecnoservice Engineering (Patrice Anstett) (BET fluides), Frédéric Manen, Golem Images (Xavier Depaule) (perspectivistes)
Astrid Beem (chef de projet) et Frédéric Alligorides, Simon Berger, Franck Courari, Jürgen Fallert, Chloé Giroud, Karine Grimaux, Léonard Gurtner, Renaud Marret, Mawari Nunez, Magdalena Sroczynska, Stéphane Zimmerli
41 000 m²
140 M € HT (valeur 2010)
Thomas Jantscher
Nominé au Grand Prix AFEX 2018