Hôpital Universitaire Lariboisière, Bâtiment Morax
France, Paris
Santé
Livré
2021
La restructuration de l’hôpital Lariboisière s’inscrit dans la stratégie hospitalière de l’AP-HP pour les Hôpitaux du Nord parisien. Alors que le site de Lariboisière a été construit à la frange de la ville du XIXe siècle, il se retrouve au coeur de celle du XXIe siècle. Jusqu’alors entouré d’une clôture le séparant du reste de la cité, le projet entend ouvrir l’hôpital sur la ville, créant ainsi une nouvelle dynamique entre l’espace public et l’espace hospitalier. Il s’agit d’une opportunité inédite de relier la ville et l’hôpital et d’imaginer un nouveau modèle de bâtiment hospitalier, plus urbain et plus humain, tel un jalon qui continue l’histoire écrite sur ce site depuis 1854.
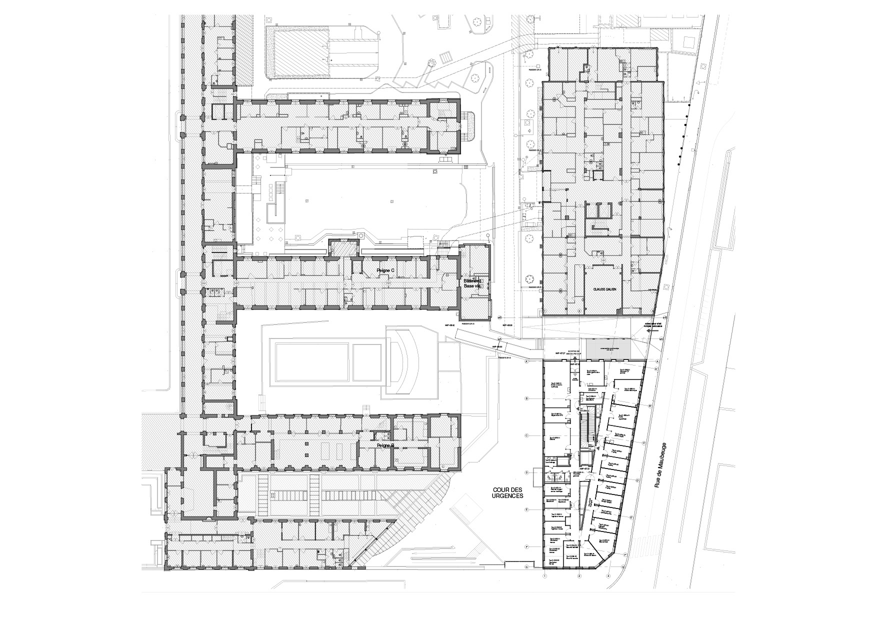
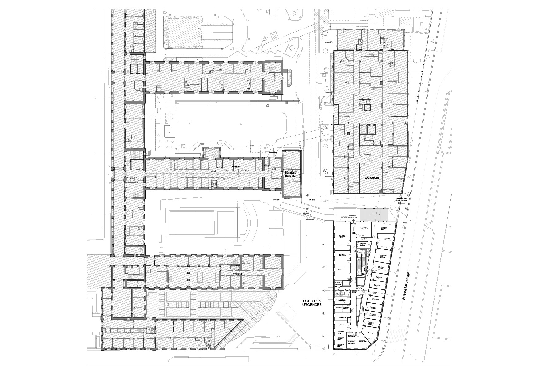
À l’extrémité sud du site, à l’angle de rue de Maubeuge et de la rue Ambroise Paré, le Nouveau Morax constitue la première pierre de ce grand projet. Bâtiment indépendant destiné à accueillir les fonctions logistiques de l’hôpital, il adopte un gabarit parisien typique, recouvert d’une enveloppe de verre redécoupée selon une grille régulière. Il s’affiche ainsi comme une « lanterne », un signal paisible au coeur d’une situation urbaine riche et complexe.
Services techniques (ateliers, service biomédical, service informatique), laboratoires d’anatomie et cytologie pathologiques, centrale énergie
Assistance Publique – Hôpitaux de Paris (AP-HP)
Loi MOP
Brunet Saunier & Associés
Bernard Desmoulin
Gerold Zimmerli
EDEIS (BET fluides, ascenseurs, transports, plomberie, CVC), Tpfi (BET démolition, structure, VRD, OPC, acoustique), Alto (ingénierie HQE), Ae 75 (économiste de la construction), Bassinet et Turquin (Paysagiste concours) élémenTerre-paysages (paysagiste études), Fl Conseil (consultant logistique), Kresterion (consultant hôpital digital), By-Encore (perspectivistes), ArchiGraphi (film), Bauraum (maquettiste)
Concours : Pierre Parquet (chef de projet concours), David Tessier, Jérémy Toumine, Corto Troude, Feissal Benkhelifa
Etudes : Philippe Vasseur (directeur de projet), Mauve Esteoule-Sibili (Chef de projet), David Tessier, Magdalena Sroczynska, Florian Arrivault, Celine Chambost, Marie-Ange Monthiers
4 500 m²
20 M€ HT
11h45