Hôpital Sainte-Musse
France, Toulon
Santé
Livré
2011
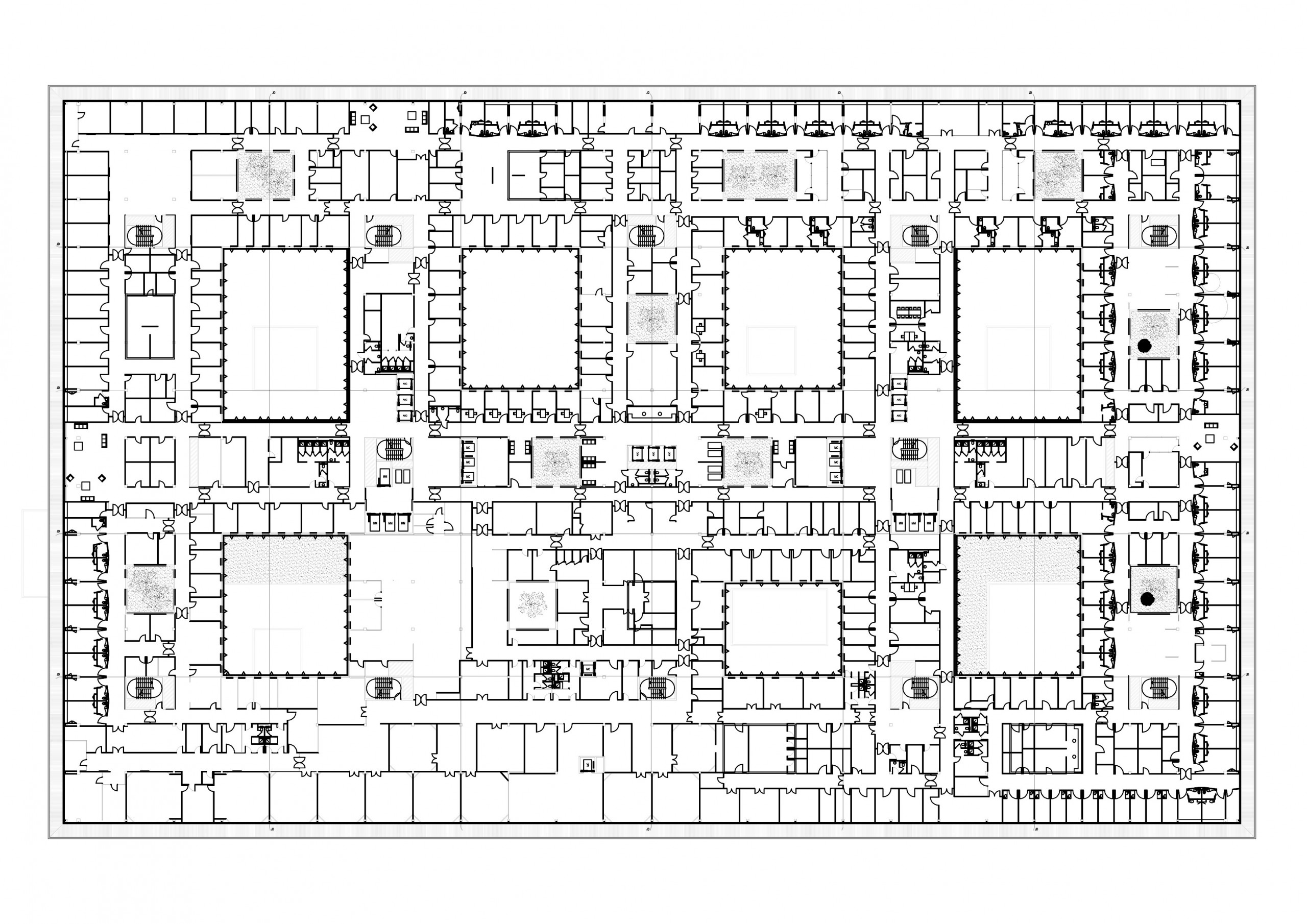
Projet urbain bien que situé à l’entrée est de la ville, en lisière d’un quartier des années 1970 et d’une zone industrielle, l’hôpital Sainte-Musse adopte le parti de « s’étaler » pour mieux se fondre dans son environnement. Il étire ainsi une longue façade urbaine constituée de lignes horizontales épaisses et continues de béton tenant lieu de brise-soleil et, pour les chambres, de cadrages cinématographiques sur le paysage.
Par sa couleur blanche, il présente un caractère institutionnel. Neutre et pérenne. Économiquement raisonnable. L’architecture de l’hôpital se réfère aux palaces modernes des bords de la méditerranée, lieux de luxe, calme et volupté, lieux de villégiature où l’on vient chercher le repos, mais aussi l’inspiration, à la faveur de l’intensité chromatique et lumineuse, exceptionnelle, du Sud.
Le bâtiment MCO, le « carré » de psychiatrie et le bâtiment dédié à l’administration trouvent un adressage commun par une grande place linéaire, un généreux mail arboré où se développent terrasses et lieux d’attente, à la manière des ramblas de Barcelone. Il constitue un lieu de transition entre la ville et l’hôpital, un « seuil » hospitalier qui traduit les idées de dignité et de civilité, et diffuse un sentiment de confort et de réconfort.
MCO, psychiatrie, bâtiment de l’administration
Capacité : 850 lits et places
Centre Hospitalier Intercommunal de Toulon-La Seyne-sur-Mer, DDE du Var (assistance à la maîtrise d’ouvrage)
Loi MOP
Brunet Saunier & Associés
Unite d’architecture – UA
Gerold Zimmerli
Sirr Ingénierie (BET et économiste de la construction), Ceef (BET façades), Logik (OPC), Pelagos (consultant hélistation), Delphi (acousticien), Péna & Peña (paysagiste), Philippe Harden, Artefactory (perspectivistes), Alpha Volumes (maquettiste)
Olivier Contré (chef de projet) et Frédéric Alligorides, Abdelhafid Bairi, Yvan Bourgeois, Arnaud Bruyelle, Philippe Carol, Fiona Copstick, Stéphane Cachat, Mauve Esteoule-Sibilli, Jürgen Fallert, François Gallet, Estelle Grosberg, Margaret Iragui-Lejeune, Guillaume Jullian, Michal Bartek Kozielewsky, Cyrille Lambin, Philippe Ledoux, Jérôme Levifve, Stéfanie Matthys, Monika Mittermeyer, Franck Murat, Carin Nilsson-Demay, Laurent Noël, Camille Nourrit, Phuong Pham Hoang, Isabelle Redon, Julie Rosier, Michel Roux-Dorlut, Mounia Saïah, Maria ScicoloneIngala, Nicolas Senly, Isabelle Vasseur, Lydie Vega-Sanchez
85 000 m²
207 M€ HT (valeur 2011)
Michel Denancé