Hôpital Nord Franche-Comté
France, Trévenans
Santé
Livré
2017
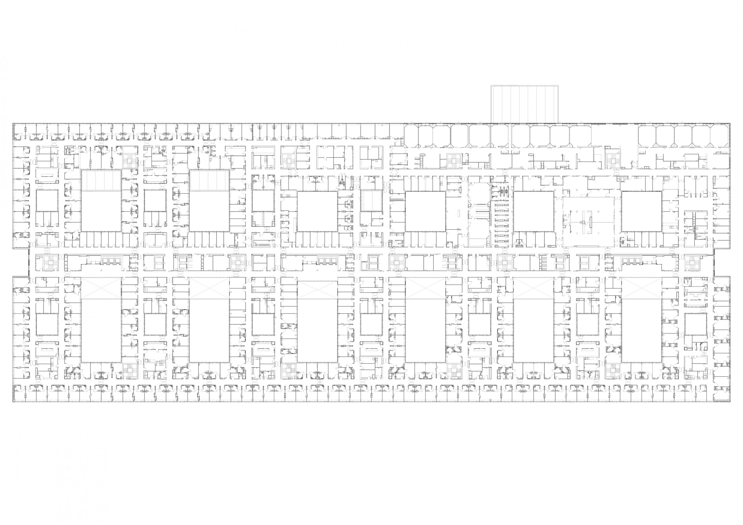
Le nouvel hôpital Nord Franche-Comté, fusion des hôpitaux de Belfort et de Montbéliard, prend place sur un terrain en pente de 25 hectares de la commune de Trévenans. Le projet s’inscrit en position haute du terrain et étire un volume longiligne de 210 m de long par 98 m de large le long des courbes de niveau. Il tire parti de la déclivité du terrain naturel pour séparer les flux (voie d’accès des urgences en partie haute, et parvis public en partie basse) et offrir aux unités d’hospitalisation des vues lointaines sur le paysage, jusqu’à l’orée de la forêt des Vosges.
Le projet conjugue deux ambitions pour l’hôpital : celle d’une « machine à soigner » rationnelle et évolutive, et d’un lieu de vie porté par le souci du bien-être des patients comme du personnel. Ainsi, la présence rassurante du bois se retrouve à la fois en façade (protégé entre deux panneaux de verre respirant), et dans les espaces intérieurs, en particulier dans le hall-rue ponctué d’atriums qui s’ouvrent généreusement sur les patios, brouillant les frontières entre l’intérieur et l’extérieur.
MCO - Capacité: 772 lits et places
Centre Hospitalier de Belfort-Montbéliard
Loi MOP
Brunet Saunier & Associés
Serge Gaussin & Associés
Gerold Zimmerli
Sirr Ingénierie (BET TCE et économiste de la construction), Ceef (BET façades), Tribu (BET HQE), Delphi, Cial (Acousticiens), Péna & Peña, Oikos (Pierre-Édouard Larivière) (paysagiste), Encore Heureux, Golem Images (Xavier Depaule), Philippe Harden (perspectivistes), Alpha Volumes (maquettiste)
Olivier Contré (chef de projet concours et études), Philippe Vasseur (chef de projet chantier) et Frédéric Alligorides, Giulio Avventi, Cedric Baelde, Pascale Blin, Franck Courari, Mauve Esteoule-Sibilli, Jürgen Fallert, Myrtille Fakhreddine, François Gallet, Karine Grimaux, Phuong Pham Hoang, Marine Leconte, Florian Ligier, Garcie de Navailles, Julie Rosier, Michel Roux-Dorlut, Mounia Saïah, Laurence Sou
79 000 m²
168 M € HT (valeur 2012)
11H45, Michel DENANCE
Prix de l’Equerre d’Argent catégorie «Lieux d’activités» 2017