Grand Hôpital de l’Est Francilien
France, Marne-la-Vallée
Santé
Livré
2012
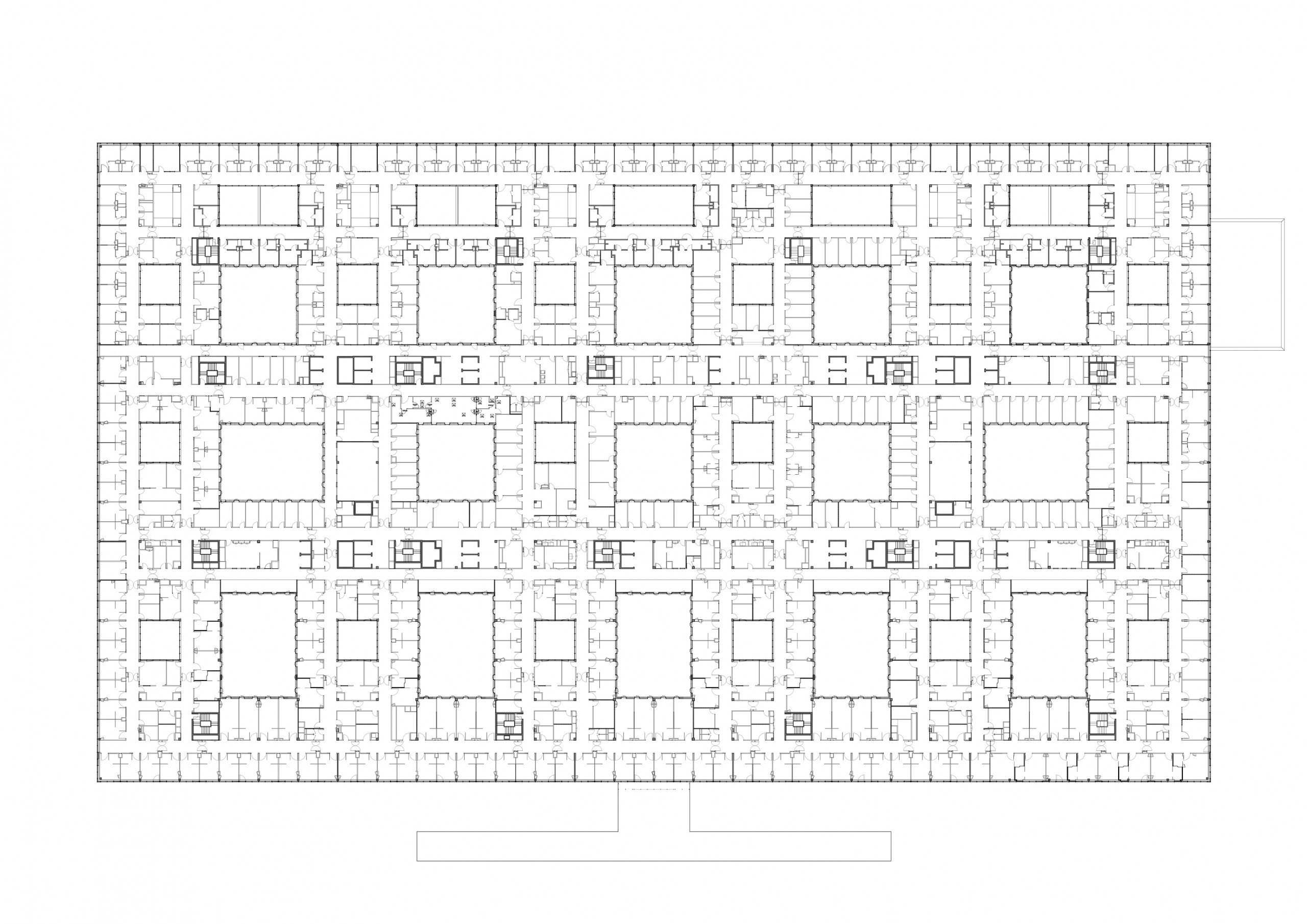
En bordure de Marne-la-Vallée, sur un terrain vaste de 12 hectares et parfaitement plat, le projet construit est la concrétisation la plus archétypale du « monospace ». Un maillage strict qui régit ici à la fois l’implantation des différents bâtiments du site (MCO, logipôle, parcs de stationnement, éventuelles extensions futures) et l’organisation interne de l’hôpital. Celui-ci forme une sorte d’échiquier de pleins et de vides parfaitement équilibrés, qui se prête sans restriction au jeu de taquin induit par le concept hospitalier.
Malgré son ampleur, le centre hospitalier réussit à s’inscrire sur son site en toute discrétion, et étire des façades blanches presque immatérielles. Des façades « anonymes » qui font disparaître la répétitivité des ouvertures comme le moindre élément technique. Des façades voulues, conçues et dessinées pour exprimer qu’ici rien n’est figé. Pour assumer pleinement l’évolutivité revendiquée de la plaque construite.
C’est ainsi que les façades, si elles laissent deviner six strates horizontales (pour trois niveaux), révèlent pour l’essentiel des lignes verticales, continues. Des lignes blanches, sérigraphiées, dont la fréquence produit un subtil effet de résonnance…
MCO, psychiatrie et logipôle.
Capacité : 485 lits et places
Centre Hospitalier de Marne-la-Vallée
Loi MOP
Brunet Saunier & Associés
Gerold Zimmerli
Terrell (BET structure), Arcora (BET façades), Artelia (BET fluides), S’pace Environnement (BET HQE), Talbot (économiste de la construction), Cial (acousticien), Péna & Peña (paysagiste), Locomotion (Laurence Guichard) (Concepteur signalétique), Philippe Harden, Golem Images (Xavier Depaule) (perspectivistes), Alpha Volumes (maquettiste)
Olivier Contré (chef de projet concours et études), Christian Chopin (chef de projet chantier) et Xavier Alfonsi, Frédéric Alligorides, Valérian Amalric, Chacha Atallah, Cédric Baelde, Pascale Blin, Mauve Esteoule-Sibilli, Jürgen Fallert, François Gallet, Karine Grimaux, Estelle Grosberg, Philippe Harden, Zeina Khawam, Mathilde Le Reste, Jérôme Levifve, Ana Markovic, Monika Mittermeyer, Franck Murat, Julie Rosier, Phuong Pham Hoang, Michel Roux-Dorlut, Mounia Saïah, Nicolas Senly, Laurence Sou, Isabelle Vasseur
72 000 m²
158 M € HT (valeur 2012)
11h45
Nomination au prix de l’Equerre d’Argent 2013