Institut Caribéen d’Imagerie Nucléaire
France, Fort-de-France
Santé
Livré
2024
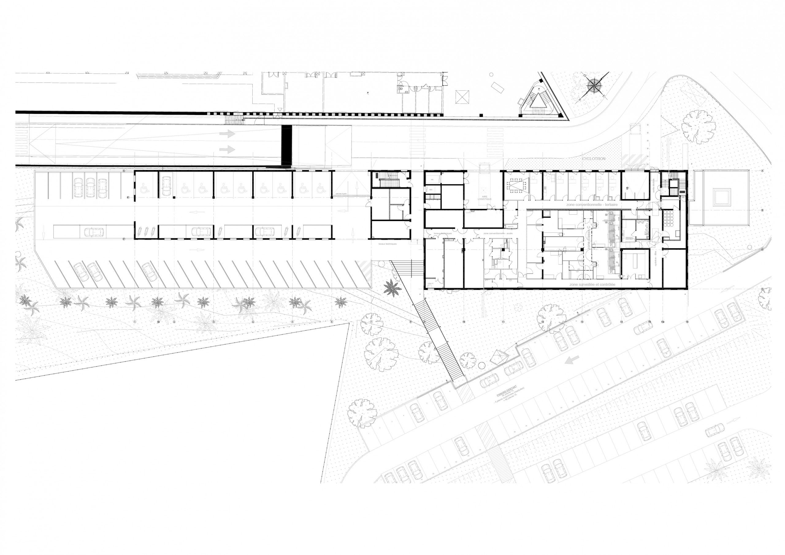
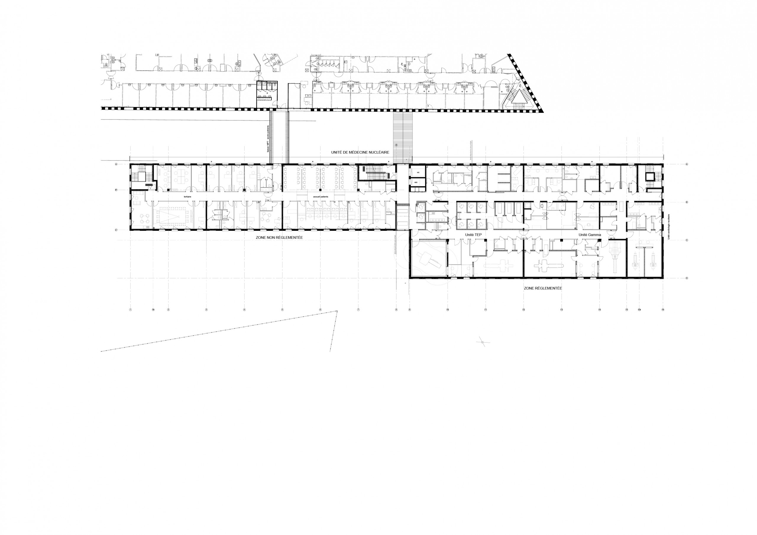
Le projet médical du CHU de Martinique prévoit la construction d’un bâtiment regroupant des activités diverses mais reliées par la volonté de créer un pôle orienté vers des activités diagnostiques et thérapeutiques en cancérologie : médecine nucléaire, anatomie et cytologie pathologiques, pharmacotechnie, et une unité cyclotron.
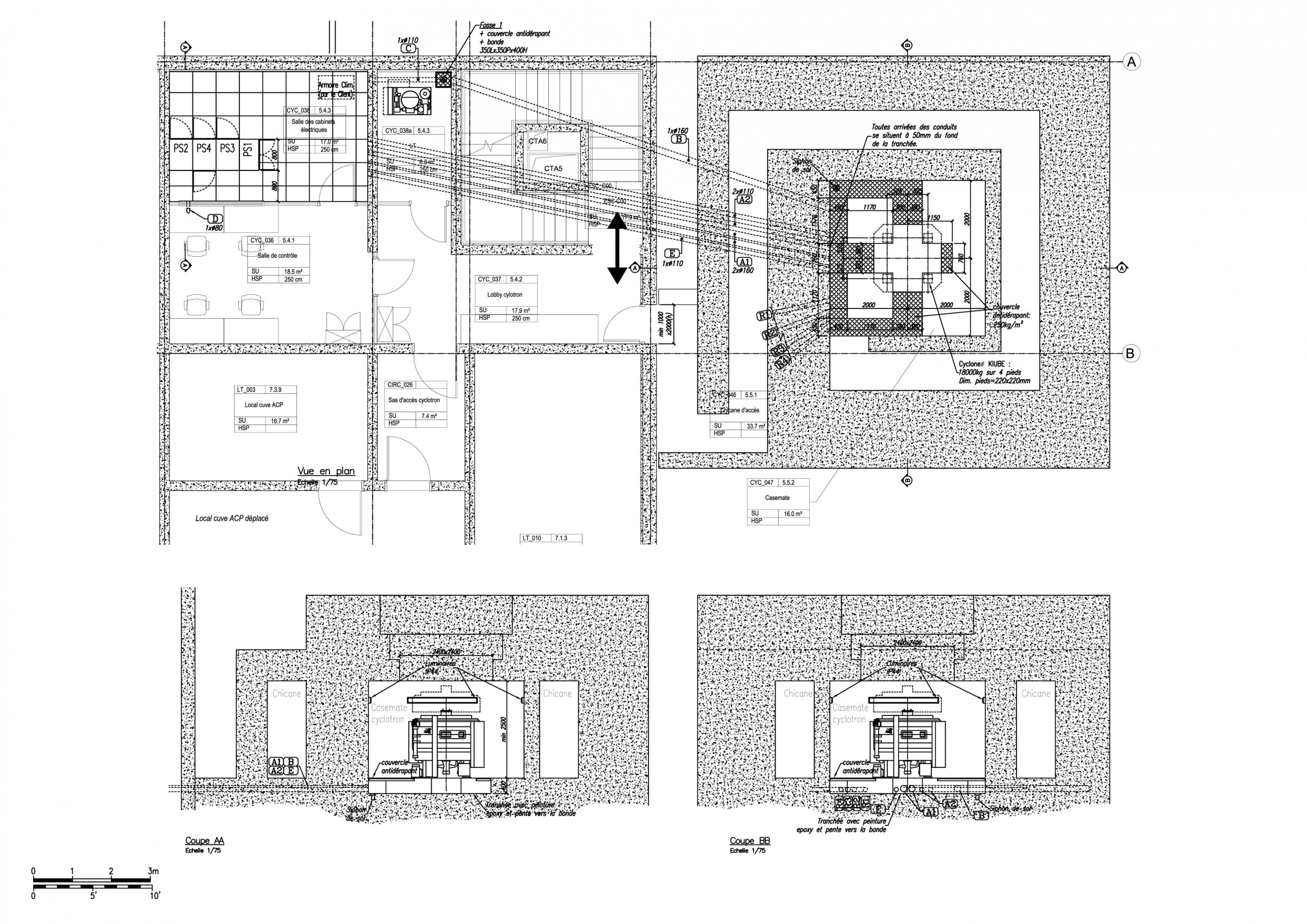
Le site est marqué par une forte dénivellation du Nord-Ouest au Sud-Est. La casemate du cyclotron prend place dans un niveau rez-de-jardin partiel, afin d’atténuer sa présence dans le site : elle émerge partiellement de la pente du terrain, comme un totem de béton bientôt entouré de végétation.
Le bâtiment principal – dit NPT – par sa taille, sa massivité, et la pureté de sa forme, s’impose sur le site comme un objet élémentaire : bien qu’étant le plus récent des bâtiments du site hospitalier, c’est bien lui qui en forge la nouvelle identité, et qui en constitue la nouvelle grammaire. Le projet prend acte de ce précédent : il se veut un satellite qui ne cherche ni à rivaliser avec son «vaisseau-mère» ni à singer artificiellement son écriture. Au contraire, il poursuit la démarche entreprise pour le NPT en en reprenant les éléments structurants : régularité de la forme et de la façade, verticalité des percements, affirmation d’une esthétique minérale.
Mais le projet tient compte des contraintes spécifiques du programme et du site, conduisant à proposer des variations sur le thème initial : dédoublement de la trame qui renforce l’effet de perspective et variation de teinte, du jaune au rouge. Vus côte à côte, les deux bâtiments forment un ensemble tellurique dont les variations de teintes se donnent à lire comme autant de déclinaisons sur le thème de la terre volcanique de l’île d’Aimé Césaire.
Médecine nucléaire, anatomie et cytologie pathologiques, pharmacotechnie et unité cyclotron
CHU de Martinique
Conception-Réalisation
Sogéa Martinique/Tunzini Antilles
Brunet Saunier & Associés
Edeis (économiste, BET fluides, acousticien), Hauss (BET structure), Playtime (perspectivistes), Jean Chamiot (architecte d’opération)
Hugo Viellard (chef de projet), Michel Roux-Dorlut, Charles Bazzaz, Marie-Ange Monthiers, Eric Zimmerli
Gerold Zimmerli
5 900 m²
20 M€ HT (valeur 2020)
11H45