Centre Hospitalier de Douai
France, Douai
Santé
Livré
2009
En limite de ville, le Centre Hospitalier de Douai, aux imposantes dimensions (180 m × 80 m), se campe comme un palais hospitalier entre ville et campagne. Pour valoriser l’environnement et mettre le patient en condition, le parc réaménagé suggère l’allée du château. Cet axe renforce la symétrie du bâtiment et la centralité de son implantation. Il conduit vers un parvis d’accueil traité comme un espace urbain à part entière, avec tous les équipements nécessaires : dépose-minute, abri vélos, totems d’information, éclairages au sol, bancs, bornes chauffantes, projections vidéo sur la façade du hall, etc. Ce lieu de transition entre le dehors et le dedans est protégé des intempéries par un large auvent suspendu, vitré, revêtu d’une sérigraphie réfléchissante et colorée dont le motif reflète le jardin et l’activité du parvis.
Ce monospace compact propose une forme finie, mais qui jamais ne se ferme, laissant des ouvertures, des failles pour des extensions satellitaires, intériorisant ainsi les espaces extérieurs, produisant les modalités d’une imbrication entre le dehors et le dedans. Sa hauteur ne dépasse pas quatre étages pour conserver l’agrément des patios qui apportent lumière et ventilation naturelle. La façade en verre sérigraphié s’orne d’un dessin géométrique en losange, référence au motif de brique vernissée régionale. L’argenture déposée en diagonale s’intensifie en hauteur et sa brillance, comme un miroir sans tain, alterne avec l’opacité du verre noir. Ce contraste d’éléments présents/absents, flous/précis confère au bâtiment une évanescence qui le dématérialise et l’allège. À l’intérieur du bâtiment, l’ambiance est inversée, les façades des patios se parent d’une peau (béton de résine) au ton de terre cuite prodiguant une lumière rosée.
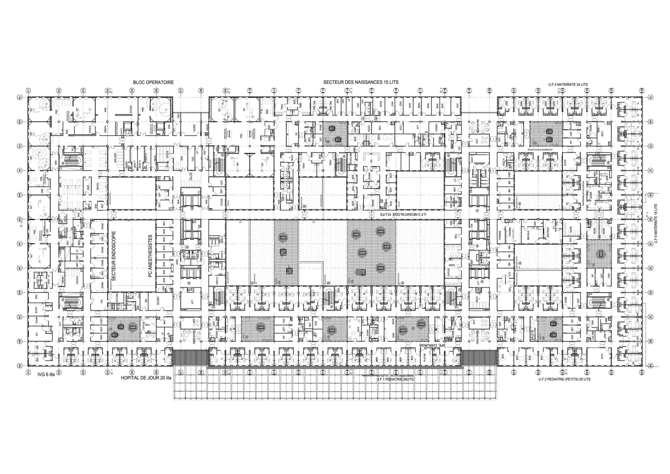
Médecine chirurgie obstétrique, plateau technique complet, bloc opératoire, imagerie, secteur naissance, hémodialyse 24 postes, chirurgie osseuse et 40 000 m² d’espaces extérieurs.
Capacité : 524 lits et places, 11 salles d’opération
Centre Hospitalier de Douai
Loi MOP
Brunet Saunier & Associés
Gerold Zimmerli
Sirr Ingénierie (BET TCE et économiste de la construction), Ceef (BET façades), Delphi (acousticien), Tribu (BET HQE), Artefactory, Xavier Beddock, Cendrine Bonami-Redler, Philippe Harden, Frédéric Manen (perspectivistes)
Olivier Contré (chef de projet concours, APS), Christian Chopin (chef de projet études et chantier) et Abdelhafid Bairi, Astrid Beem, Catherine Bonnier, Yvan Bourgeois, Arnaud Bruyelle, Florence Canal, Fiona Copstick, Julie Doubesky, Jürgen Fallert, Karine Grimaux, David Hingamp, Michal Bartek Kozielewsky, Jacques Lévy-Bencheton, Vincent Mégrot, Maria-So De Noronha, Camille Nourrit, Ghislaine Picard, Lionel Renouf, Lydie Vega-Sanchez, Maria Scicolone-Ingala, Magdalena Sroczynska, Angela Tandura
65 000 m²
110 M€ HT (valeur 2009)
Michel Denancé et Yves Marchand & Romain Meffre
Nomination au prix de l’Equerre d’Argent 2009