Arc-en-Ciel Siemens
France, Saint-Denis
Tertiaire/Industrie
Livré
2006
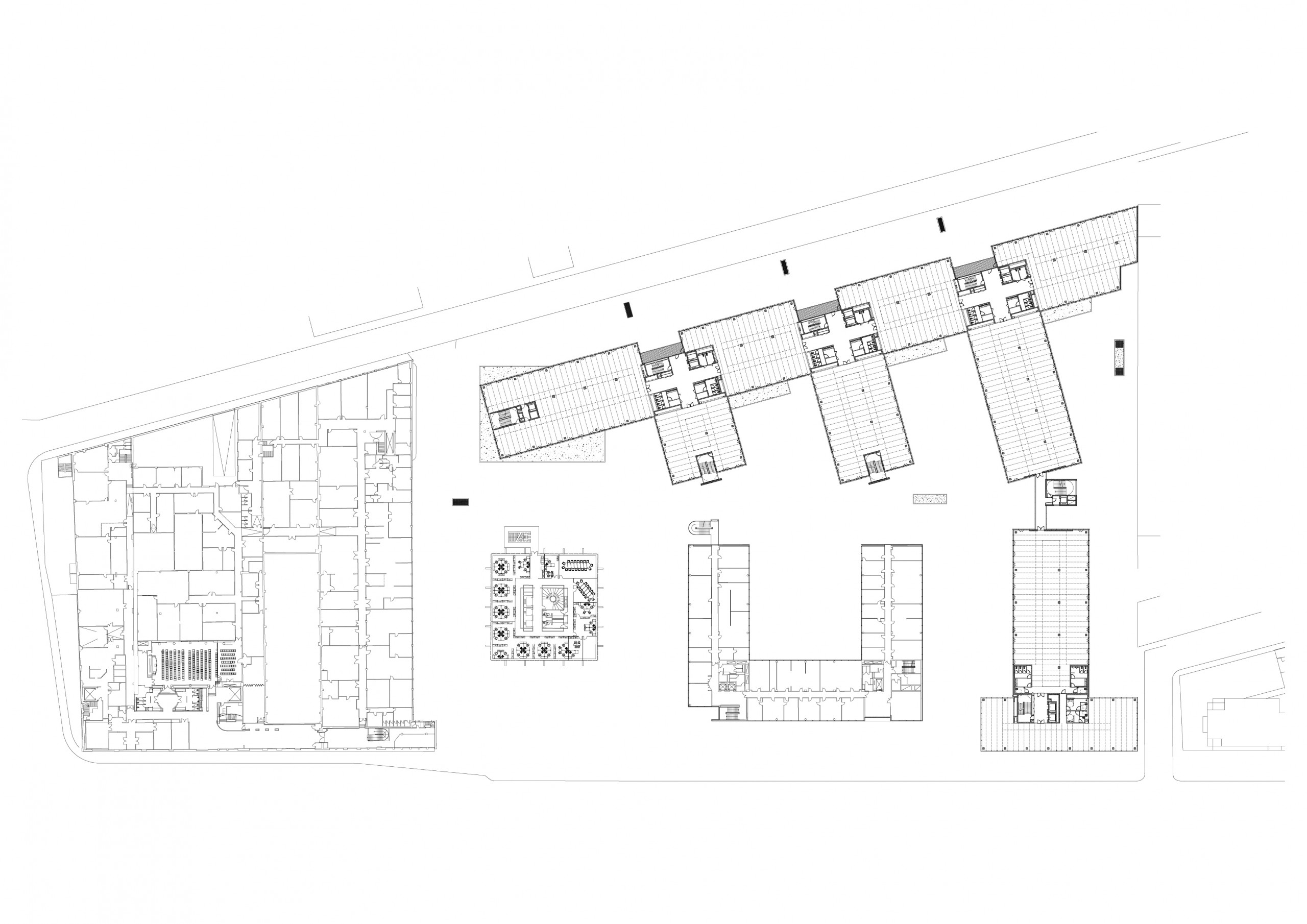
Le programme Arc-et-Ciel se situe sur le site historique de la société Siemens, sur le grand axe qui relie la porte de Clignancourt au carrefour Pleyel. Au sein d’un territoire en pleine mutation, il est un trait d’union entre deux quartiers de Saint-Denis: Pleyel et Landy. Ce programme de 33 000 m² livré en deux tranches de 16 500 m² chacune, comprend sur six étages, en plus des espaces tertiaires, un restaurant d’entreprise, un auditorium, un centre de fitness, un data center. L’ensemble est complété par un parc de stationnement souterrain.
Les corps de bâtiment sont totalement vitrés pour offrir transparence et clarté, tandis que des stores vénitiens extérieurs permettent de maîtriser la luminosité et la chaleur. Les coffres de stores s’insèrent dans des bandes filantes horizontales dont la répétition à chaque niveau scande la façade. Les passerelles vitrées et les paliers d’étages forment des césures dans cet ensemble, des respirations ouvertes généreusement sur la ville, de même que les terrasses en attique. Implanté sur un site en effervescence, cet ensemble de bureaux profite du calme d’un jardin paysager parcouru par un canal qui irrigue chaque bâtiment, faisant de ce lieu un paysage exemplaire.
Bureaux, centre de conférences, restaurant
Siemens, UBS Real Estate Kapitalanlagegesellschaft mbH
Commande directe
Brunet Saunier & Associés
Terrell (BET structure), Bethac (BET fluides), Vulcaneo (BET sécurité incendie), Paul Pieffet (économiste de la construction), Delphi (acousticien), Laure Quoniam (paysagiste), Philippe Harden et Artefactory (perspectivistes)
Astrid Beem (chef de projet) et Frédéric Alligorides, Yvan Bourgeois, Florence Canal, Samuel Delmas, Claudia Dieling, Martin Fougeras, Maxime Gasperini, Jean-Michel Reynier, Maria Scicolone-Ingala, Derk Sichtermann, Isabelle Vasseur, Lydie Vega-Sanchez, Anissa Ybert
37 000 m²
60 M€ HT (valeur 2006)
Jean-Marie MONTHIERS