Interventional and Surgical Center
France, Rennes
Healthcare
Completed
2025
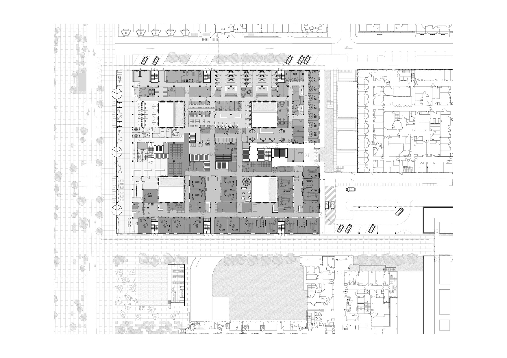
The new Surgical and Interventional Center marks the first phase of an ambitious project to redevelop the Rennes University Hospital on the Pontchaillou site. Strategically located at the heart of the site, the building is designed to bring together surgical and interventional activities, as well as associated critical care and conventional hospitalizations. This convergence enables the sharing of resources and the streamlining of professional workflows, thereby enhancing patient care and improving cost-effectiveness.
The building is positioned to make the most of the available footprint. The block is “extruded” to define a capable volume, a “slab” that is then “carved out” with patios and “breaches” to bring light into its heart. This homogeneous form is designed to withstand the test of time: like a “horizontal” skyscraper, it anticipates the constant evolution of hospital practices by not subordinating the building’s appearance to the functions it houses, which may change rapidly.
The neutrality of the facade mirrors that of the plan. The windows are regularly distributed on a 125 cm module, derived from the subdivision of the structural grid. In the patient rooms, each room enjoys an incredible floor-to-ceiling window measuring 2.5 m wide and 2.80 m high.
Inspired by New York skyscrapers, the project borrows their intentional gap between the agility of the content and the permanence of the container; it also borrows their preferred material: brick, which finds its natural place on the hospital site where mineral facades are the norm and metal the exception. This use pays discreet homage to the moldings of the original pavilions of the Pontchaillou hospices. The implementation, using long, light-colored bricks laid out like the typical tuffeau stone of central Rennes, creates a link between the city and the hospital site.
Ambulatory care center, operating block, critical care, conventional surgical hospitalizations, tertiary medical forum, sterilization, logistical functions.
Capacity: 408 beds and places, 55 operating rooms.
CHU de Rennes
Design-Build
Sogéa Bretagne Btp/Vinci Construction
Brunet Saunier & Associés
Edeis (Engineering), Fl Conseil (logistics consultant), Sertco (structure technical consultant), Gpl Expert (digital hospital consultant), Sigma Acoustique (acoustics expert), Armor Ingénierie (SSI), Franck Boutté Consultants (environment), Cegelec (Electricity), Pelagos Aéro (helipad), R2m (economist), Philippe Villien (urban planner), Luxigon/Arte Factory/By Encore (renderers), Fred Manen/Graphic’images Nantes (movie)
Garcie de Navailles (project leader), Franck Courari, Thomas Giroud, Clément Billaquois, Eric Zimmerli, Gerold Zimmerli, Magdalena Sroczynska, Alba de Martino, Charles Bazzaz, Michel Roux-Dorlut
50 400 sq. m
136 M€ w/o tax (2019 value)