Eastern Paris Grand Hospital
France, Marne-la-Vallée
Healthcare
Completed
2012
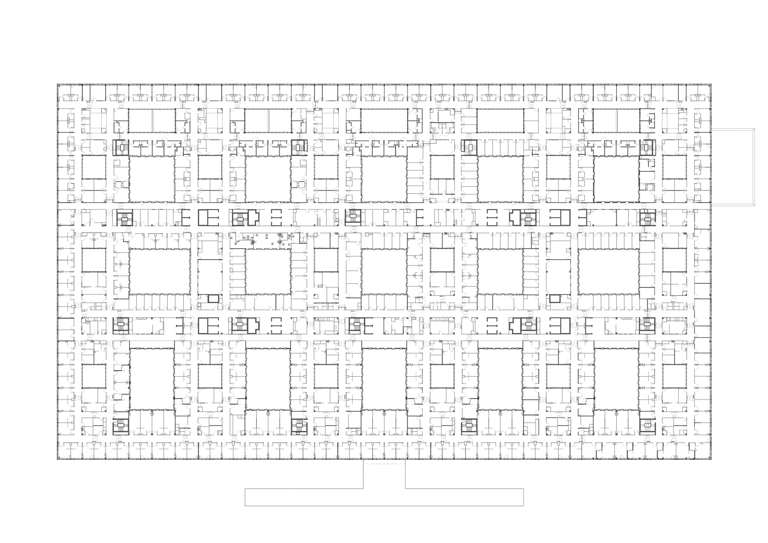
Bordering Marne-la-Vallée, on a vast, perfectly flat 12-hectare plot, the constructed project is the most archetypal realization of the “monospaces” concept. A strict grid that governs both the layout of the site’s various buildings (medical and surgical unit, logistics center, parking lots, potential future extensions) and the internal organization of the hospital. The latter forms a kind of chessboard of solids and voids, perfectly balanced, which lends itself without restriction to the puzzle-like game induced by the hospital concept.
Despite its size, the hospital center manages to fit discreetly into its site, stretching out almost immaterial white facades. “Anonymous” facades that make the repetition of openings and the slightest technical element disappear. Facades that were intended, designed, and drawn to express that nothing here is fixed. To fully assume the claimed evolvability of the constructed slab.
Thus, while the facades hint at six horizontal strata (for three levels), they reveal essentially continuous vertical lines. White, screen-printed lines whose frequency produces a subtle resonance effect…
Medical Surgical Obstetrical unit, psychiatry, and logistics center.
Capacity : 485 beds.
Centre Hospitalier de Marne-la-Vallée
Public Procurement (MOP law)
Brunet Saunier & Associés
Gerold Zimmerli
Terrell (structure technical consultant), Arcora (facade technical consultant), Artelia (fluids technical consultant), S’pace Environnement (HEQ consultant), Talbot (construction economist), Cial (acoustics expert), Péna & Peña (landscape expert), Locomotion (Laurence Guichard) (signage designer), Philippe Harden, Golem Images (Xavier Depaule) (renderer), Alpha Volumes (model maker)
Olivier Contré (competition and studies project manager), Christian Chopin (construction project manager) and Xavier Alfonsi, Frédéric Alligorides, Valérian Amalric, Chacha Atallah, Cédric Baelde, Pascale Blin, Mauve Esteoule-Sibilli, Jürgen Fallert, François Gallet, Karine Grimaux, Estelle Grosberg, Philippe Harden, Zeina Khawam, Mathilde Le Reste, Jérôme Levifve, Ana Markovic, Monika Mittermeyer, Franck Murat, Julie Rosier, Phuong Pham Hoang, Michel Roux-Dorlut, Mounia Saïah, Nicolas Senly, Laurence Sou, Isabelle Vasseur
72 000 sq. m
158 M€ w/o tax (2012 value)
11h45
2013 Equerre d’Argent Award Nominee